Navigation überspringen
Start
Das Hetzberghaus
Das Hetzberghaus
Innenansicht
Garten
Ausstattung
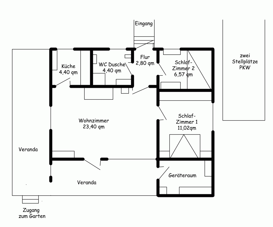
Grundriss
Lage
Die Lage
Anfahrt
Buchung
Buchungsanfrage
Preise
Belegungsplan
Fotos
Fotos
Garten
Umgebung
News
Gästebuch
Reisetipps
Reisetipps
Grünberg
Laubach
Wandern
Schwimmbäder - Sauna
Weitere Urlaubstipps
und abends
Impressum
Impressum
AGB
Datenschutz
Downloads
Der Grundriss vom Hetzberghaus